Description
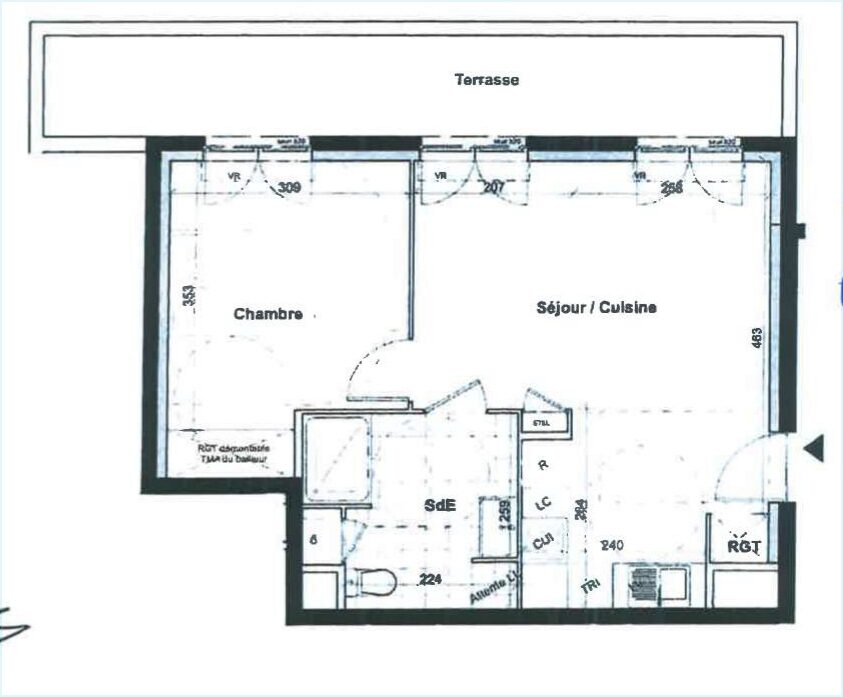
La Clé Immobilière Villepinte vous propose cet appartement de Type F2
Entrée donnant sur une cuisine ouverte et un séjour avec accèsà la terrasse, salle d’eau une chambre disposant égalemnt d’un accès à la terrasse.
Parking inclus.
SH: 40.99m²

Localisation du bien
Energy Performance
- Classe Énergie: C
- Performance Energétique: 118
-
EPC Classement actuel :
25
- A+
- A
- B
- C
- D
- E
- F
- G
Bien similaires
VERT GALANT – TREMBLAY EN FRANCE
Découvrez ce F3 de 56 m², situé en plein centre-ville,…
Vente
209900€